stereo architektur
Maison Abakus
Basel
Plus d’infos
Nuage de mots :
« flexibilité » « façade » « métal » « structure » « préfabriqué » « bois » « coopérative » « cage d’escalier » « garde-corps » « rose »
Adresse :
Liens externes :
Autres infos :
Le projet est une initiative de logement coopératif (Mietshäuser Syndikat Basel) développée par les futurs habitants et les architectes. Plus qu’un bâtiment, c’est une vision de la vie communautaire et de la durabilité, considérant le logement comme un besoin fondamental et non comme un objet de spéculation. Lire la suite…
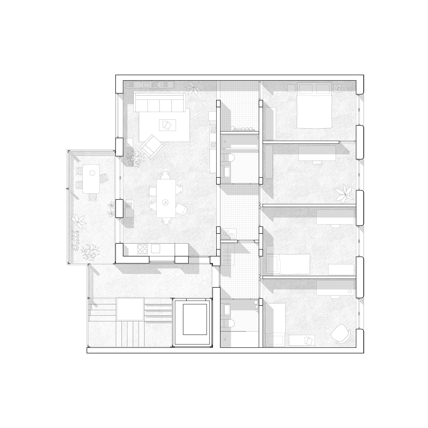
L’objectif central est la flexibilité : L’objectif principal est de permettre aux résidents de rester chez eux même lorsque leur situation familiale (et donc leur besoin d’espace) évolue, et ce, sans nécessiter de travaux. Pour ce faire, l’architecture combine ingénieusement deux types d’habitat : des « appartements noyaux » extensibles horizontalement (pour les résidents à long terme) et une colocation organisée verticalement Destinée à des personnes ayant souvent du mal à accéder aux coopératives (étudiants, réfugiés, célibataires). La fluctuation naturelle de la colocation permet aux appartements noyaux de s’agrandir (par exemple de 3,5 à 5,5 pièces) ou de rétrécir simplement en ouvrant ou fermant des portes. Cette approche favorise la mixité sociale et un logement abordable.
La construction est écologique et économique : une ossature en bois préfabriqué, des dalles en béton léger et une réduction à l’essentiel pour minimiser l’énergie grise et les coûts. Les installations techniques sont minimales et la cage d’escalier extérieure, non chauffée, relie les balcons, le jardin et le toit-terrasse, devenant l’épine dorsale sociale du bâtiment. L’esthétique est marquée par la construction apparente (bois, béton brut). L’appropriation par les résidents est clé : ils ont assemblé leurs propres cuisines (via un kit) et gèrent les espaces verts. Abakus n’est pas conçu comme un état final, mais comme un point de départ pour une vie partagée en constante évolution.
sources :
Photographe : Daisuke Hirabayashi
Dessins : Swiss Arc Digital, ARCHELLO
Texte : traduction et adaptation du texte de The Abakus
Laisser un commentaire