Studio Gugger
hirtenweg
Bâle
Plus d’infos
Nuage de mots :
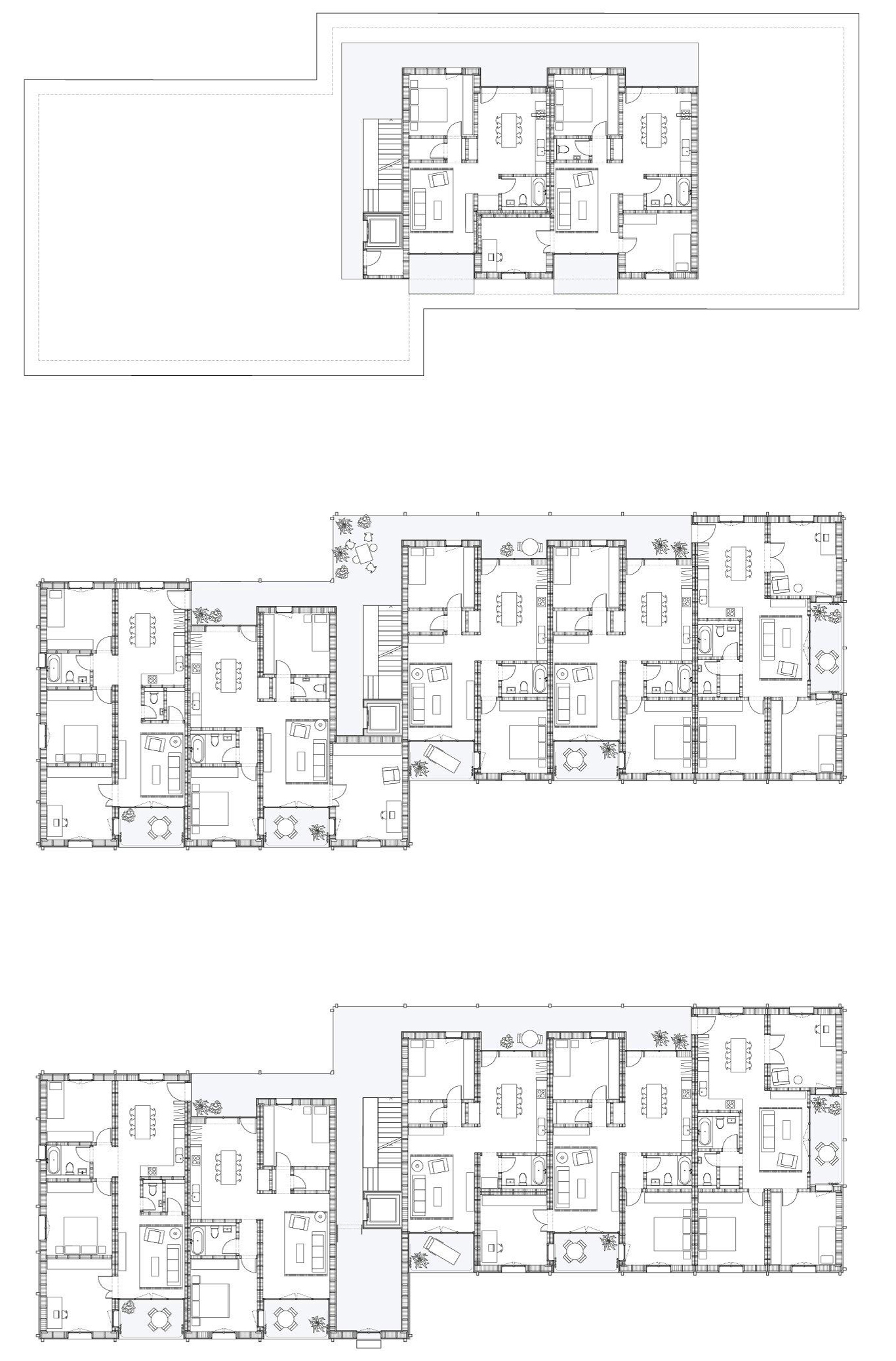
« Façade » « structure » « bois » « rouge » « coursives » « lumière » « poteaux » « rideaux » « cuisine » « blanC » « préfabrication » « module »
Adresse :
Liens externes :
sources :
Photographe : Daisuke Hirabayashi
Dessins : Studio Gugger
Laisser un commentaire