Lacol

La borda

Barcelone

Plus d’infos
Nuage de mots :

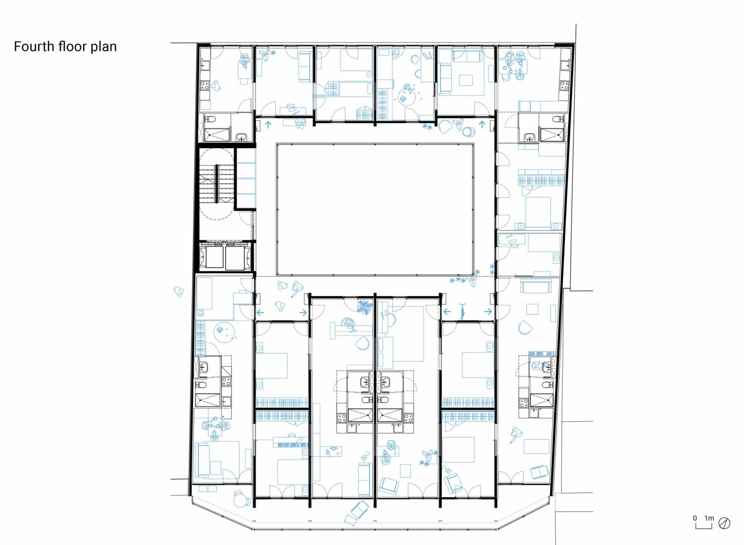
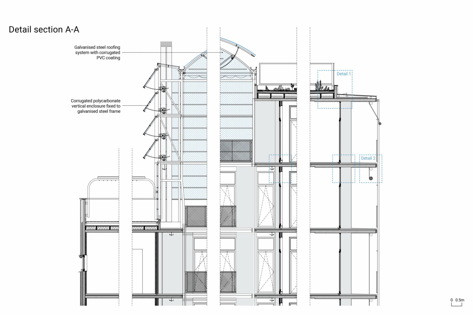
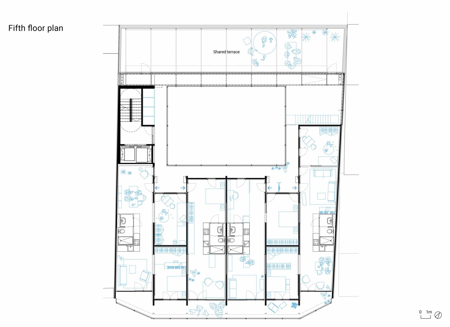
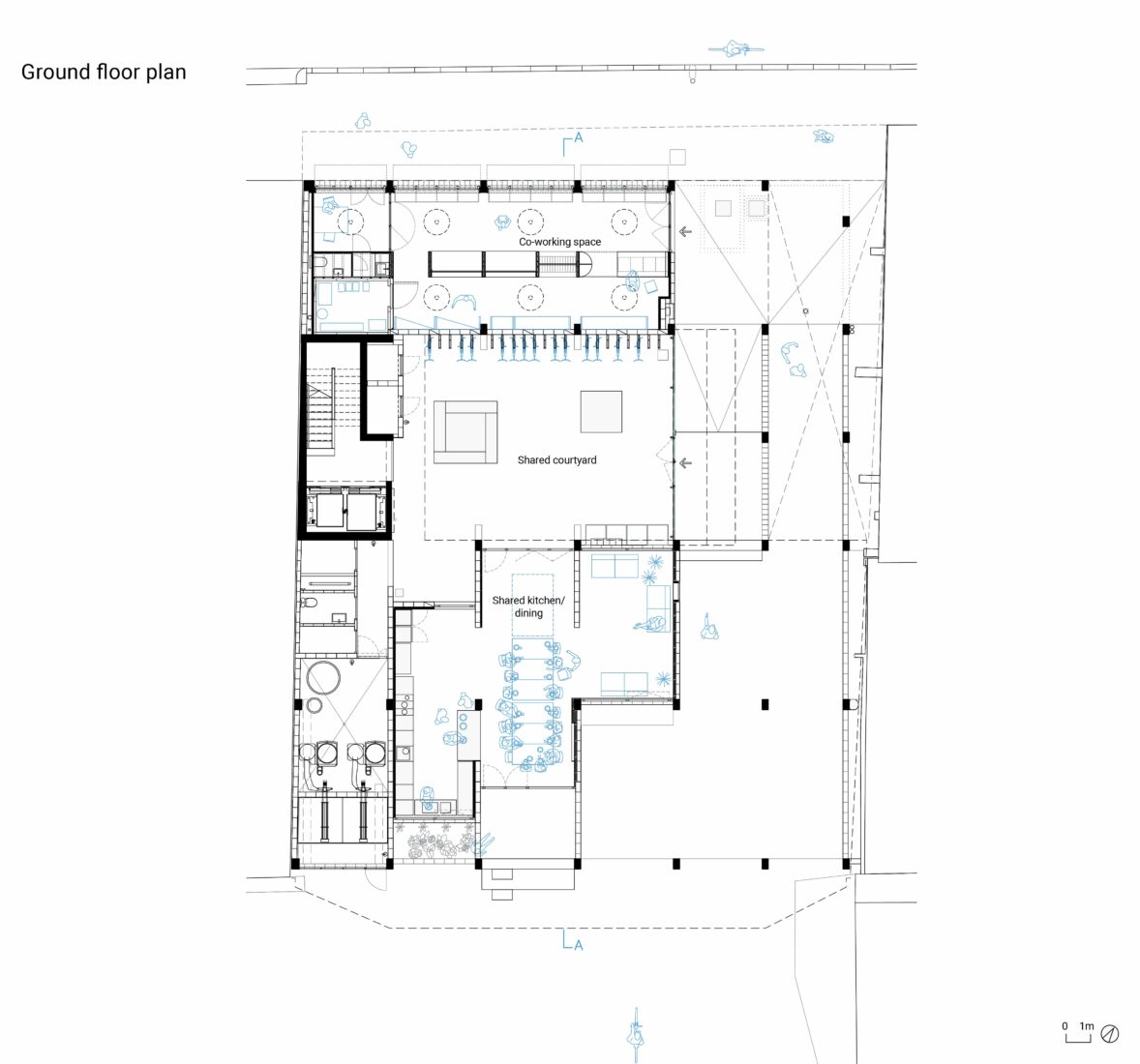
« stores » « balcons » « structure » « bois » « metal » « Cooperative » « vie ensemble » « communauté »

Adresse :

Liens externes :

sources :

SAUVEGARDER
Please login to bookmark Close
dire quelque chose

Laisser un commentaire

Votre adresse e-mail ne sera pas publiée. Les champs obligatoires sont indiqués avec *

Publié

dans

,