Mathis Kamplade Architekten
Maison multigénérationnelle à Friesenberg
zurich
Plus d’infos
Nuage de mots :
« façade » « crépis » « blan » « plan » « celule » « cuisine » « loggia »
Adresse :
Liens externes :
sources :
Photographe : Atelier für Architekturfotografie, Seraina Wirz
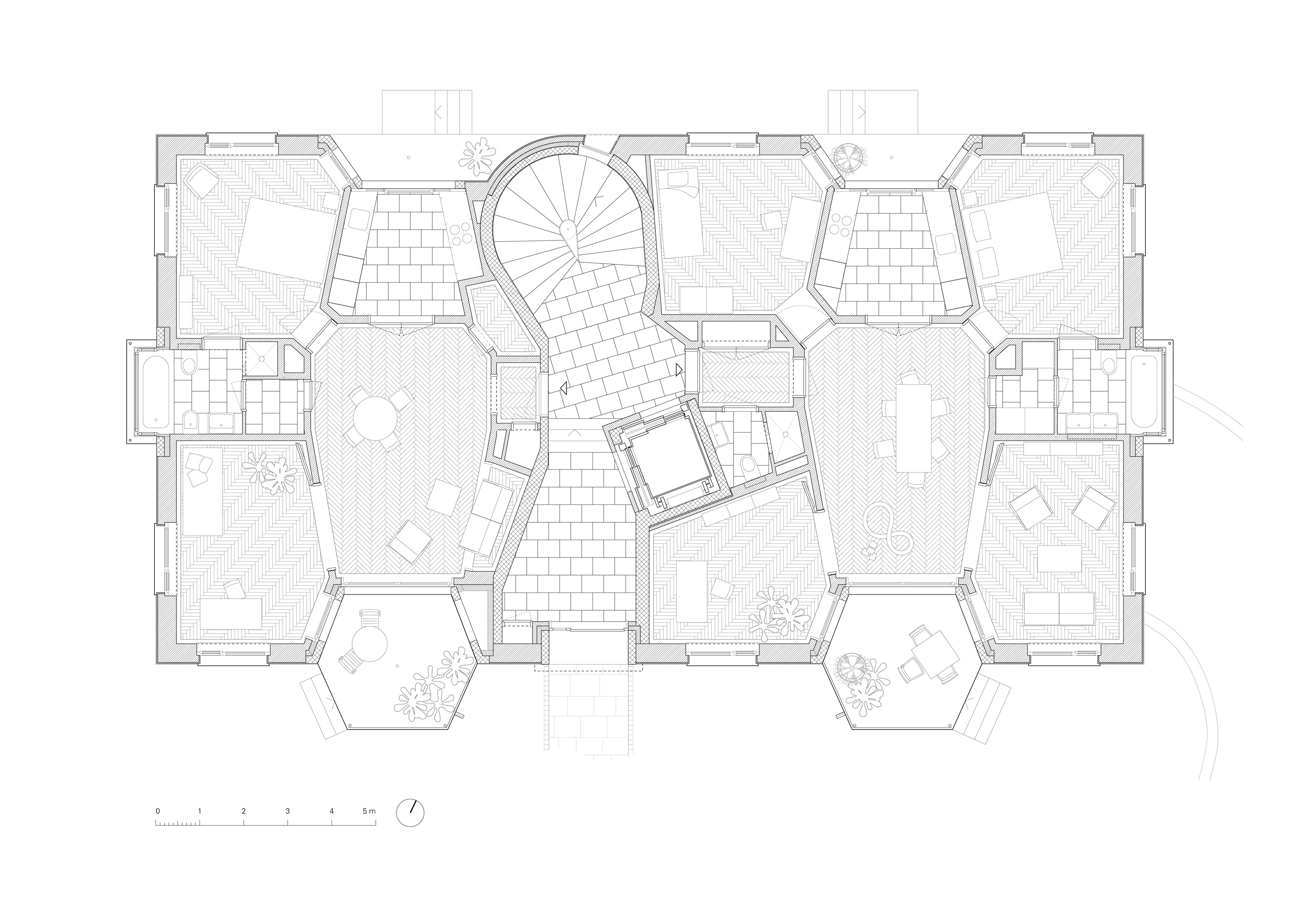
Dessins : Mathis Kamplade Architekten
Laisser un commentaire