08014 arquitectura

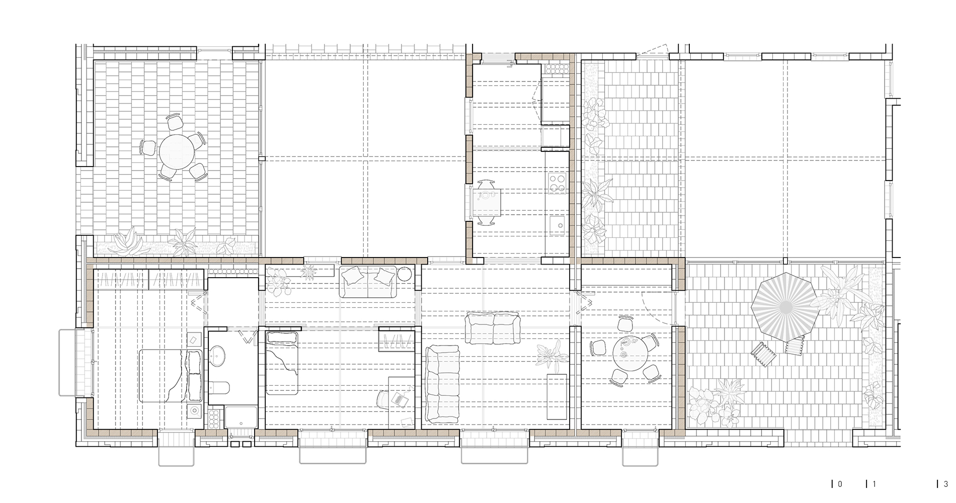
24 logements LUP

eivissa, IBIZA, ES

Plus d’infos
Nuage de mots :

« façade » « brique isolante porteuse » « peintes « blanc » « plancher » « bois » « solives » « cuisine »

Adresse :

Liens externes :

SAUVEGARDER
Please login to bookmark Close
dire quelque chose

Laisser un commentaire

Votre adresse e-mail ne sera pas publiée. Les champs obligatoires sont indiqués avec *