ACAU
Centre d’hébergement de Rigot
Genève
Plus d’infos
Nuage de mots :
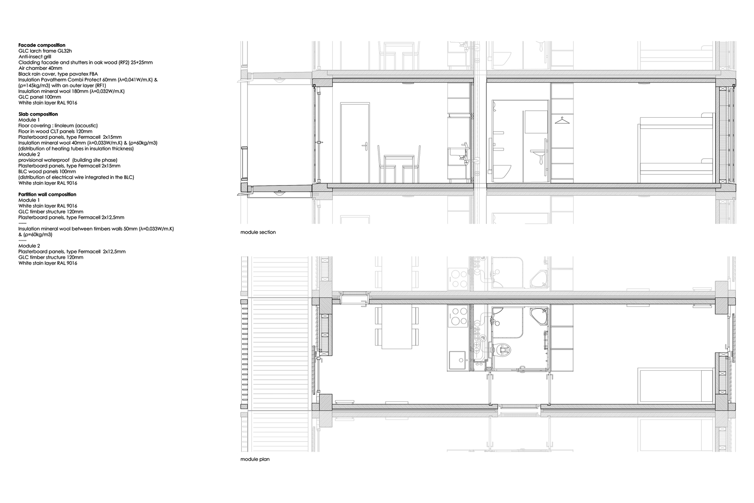
« Façade » « Bois » « POteaux » « PLAN » « flexibilité » « module » « préfabrication »
Adresse :
Liens externes :
sources :
Photographe : Marcel Kultscher
Dessins : ACAU
« Façade » « Bois » « POteaux » « PLAN » « flexibilité » « module » « préfabrication »
Adresse :
Liens externes :
sources :
Photographe : Marcel Kultscher
Dessins : ACAU
Laisser un commentaire